Phones: +61 477 012 697


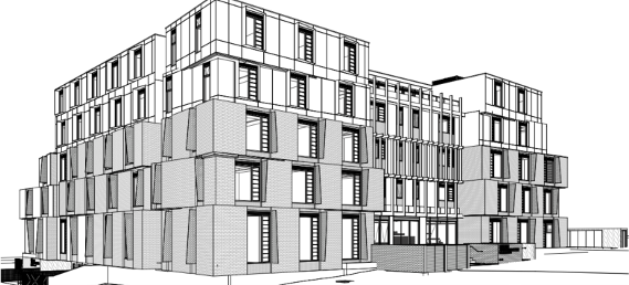
Monash Accommodation

40-44 Wellington Road, Clayton, Victoria

 


Base footprint circa 1,500m2 – Structural Package approx. $4M+
5 Level Apartment Building over 1 Basement